Kunsthal Nordvest, kandidatprojekt
(KADK)
En kunsthal er et udstillingssted, der modsat et museum ikke har en fast samling af kunstværker. Kunsthaller udstiller kunst. Der sælges ikke kunst. En moderne kunsthal vil typisk indgå i en lang række formelle og uformelle netværk med andre kunsthaller rundt om i verden. Det skal sikre adgang til de mest interessante kunstnere, samt styrke profileringen af kunsthallen.
I Kunsthal Nordvest er der skiftende udstillinger med individuelle kunstnere eller kuraterede gruppeudstillinger, skiftevis med fokus på kunstnere uden direkte tilknytning til kunsthallen og kunstnere der udstiller arbejde udført i de til kunsthallen tilknyttede værksteder.
![]()
Visionen er at skabe en internationalt orienteret og forankret kunsthal for samtidskunst med den allerhøjeste kunstfaglige ekspertise i en tidssvarende arkitektur. I de sidste femten - tyve år har man i kunstkredse og blandt politikere talt om at København mangler en kunsthal for den nyeste kunst, samtidskunsten (forstået, i denne situation, som kunst fra 1960’erne og fremefter), i en passende ramme bestående af fleksibel og tidssvarende arkitektur, hvilket København i øjeblikket ikke har.
Ideen om, at skabe en international kunsthal for samtidskunst i København, er altså ikke ny. I København er der ikke en udstillingsinstitution med en tidssvarende arkitektur, og dermed udstillingsrum, der lever op til de krav, der stilles til moderne udstillingsfaciliteter. De byer vi normalt sammenligner København med, har generelt en langt stærkere profil inden for samtidskunst. Stockholm har eksempelvis fjorten kunsthaller og en lang tradition for at støtte samtidskunsten blandt erhvervsfolk og politikere.
Kunsthallerne Nordvest vil udfylde det hul, der er i markedet for en internationalt forankret kulturinstitution for samtidskunst i København.
Tilknytning til Louisiana - men en del af København
Kunsthal Nordvest vil i sin organisation og virke indgå i tæt samarbejde og netværk med Louisiana - Museum for Moderne Kunst i Humlebæk. Der er tale om et forpligtende samarbejde med fokus på produktion af udstillinger, uviklingsprogrammer (kreativ talentudvikling) og markedsføring. Målet er, at skabe en organisation der differentierer sig fra Louisiana ved udelukkende at fokusere på skulptur- og installations-kunst fra 1960’erne og fremefter, samtidig med at der opnås en bred folkelig forankring og effektiv kommunikation og formidling.
Det er grundideen, at kunsthallen skal være en kulturinstitution, der profilerer København og Nordvest over for et internationalt kunstpublikum og kulturturisme. Det er centralt for projektet, at kunsthallen indgår som en naturlig del af – og i klar synergi med – samarbejdspartner Louisiana samt det eksisterende netværk af museer og kulturinstitutioner i Danmark og København i særdeleshed.
Kunsthallen er ikke for en snæver elite, men for den brede befolkning. Alt fra pensionistforeninger, folkeskoler, gymnasier og kunstkendere, danske som udenlandske. Kunsthallens målrettede formidlingsaktiviteter til skoler, universiteter og andre undervisningsinstitutioner vil have høj prioritet.
Der vil, i projektets tilblivelse, og i det endelige projekt, være gennemgående elementer som samler kunsthallens programmatiske tilblivelse:
Skala: byen - mellemrummet - kunsthallen.
Rum: åbent - klemt - lukket.
Bevægelsen: under - igennem - over.
Hastighed: hurtig - mellem - langsom.
Niveau: under - terræn - over.
Kunsthaller: blå (relationelt) - grå (isoleret) - hvid (løsrevet).
(KADK)
En kunsthal er et udstillingssted, der modsat et museum ikke har en fast samling af kunstværker. Kunsthaller udstiller kunst. Der sælges ikke kunst. En moderne kunsthal vil typisk indgå i en lang række formelle og uformelle netværk med andre kunsthaller rundt om i verden. Det skal sikre adgang til de mest interessante kunstnere, samt styrke profileringen af kunsthallen.
I Kunsthal Nordvest er der skiftende udstillinger med individuelle kunstnere eller kuraterede gruppeudstillinger, skiftevis med fokus på kunstnere uden direkte tilknytning til kunsthallen og kunstnere der udstiller arbejde udført i de til kunsthallen tilknyttede værksteder.

Visionen er at skabe en internationalt orienteret og forankret kunsthal for samtidskunst med den allerhøjeste kunstfaglige ekspertise i en tidssvarende arkitektur. I de sidste femten - tyve år har man i kunstkredse og blandt politikere talt om at København mangler en kunsthal for den nyeste kunst, samtidskunsten (forstået, i denne situation, som kunst fra 1960’erne og fremefter), i en passende ramme bestående af fleksibel og tidssvarende arkitektur, hvilket København i øjeblikket ikke har.
Ideen om, at skabe en international kunsthal for samtidskunst i København, er altså ikke ny. I København er der ikke en udstillingsinstitution med en tidssvarende arkitektur, og dermed udstillingsrum, der lever op til de krav, der stilles til moderne udstillingsfaciliteter. De byer vi normalt sammenligner København med, har generelt en langt stærkere profil inden for samtidskunst. Stockholm har eksempelvis fjorten kunsthaller og en lang tradition for at støtte samtidskunsten blandt erhvervsfolk og politikere.
Kunsthallerne Nordvest vil udfylde det hul, der er i markedet for en internationalt forankret kulturinstitution for samtidskunst i København.
Tilknytning til Louisiana - men en del af København
Kunsthal Nordvest vil i sin organisation og virke indgå i tæt samarbejde og netværk med Louisiana - Museum for Moderne Kunst i Humlebæk. Der er tale om et forpligtende samarbejde med fokus på produktion af udstillinger, uviklingsprogrammer (kreativ talentudvikling) og markedsføring. Målet er, at skabe en organisation der differentierer sig fra Louisiana ved udelukkende at fokusere på skulptur- og installations-kunst fra 1960’erne og fremefter, samtidig med at der opnås en bred folkelig forankring og effektiv kommunikation og formidling.
Det er grundideen, at kunsthallen skal være en kulturinstitution, der profilerer København og Nordvest over for et internationalt kunstpublikum og kulturturisme. Det er centralt for projektet, at kunsthallen indgår som en naturlig del af – og i klar synergi med – samarbejdspartner Louisiana samt det eksisterende netværk af museer og kulturinstitutioner i Danmark og København i særdeleshed.
Kunsthallen er ikke for en snæver elite, men for den brede befolkning. Alt fra pensionistforeninger, folkeskoler, gymnasier og kunstkendere, danske som udenlandske. Kunsthallens målrettede formidlingsaktiviteter til skoler, universiteter og andre undervisningsinstitutioner vil have høj prioritet.
Der vil, i projektets tilblivelse, og i det endelige projekt, være gennemgående elementer som samler kunsthallens programmatiske tilblivelse:
Skala: byen - mellemrummet - kunsthallen.
Rum: åbent - klemt - lukket.
Bevægelsen: under - igennem - over.
Hastighed: hurtig - mellem - langsom.
Niveau: under - terræn - over.
Kunsthaller: blå (relationelt) - grå (isoleret) - hvid (løsrevet).





































































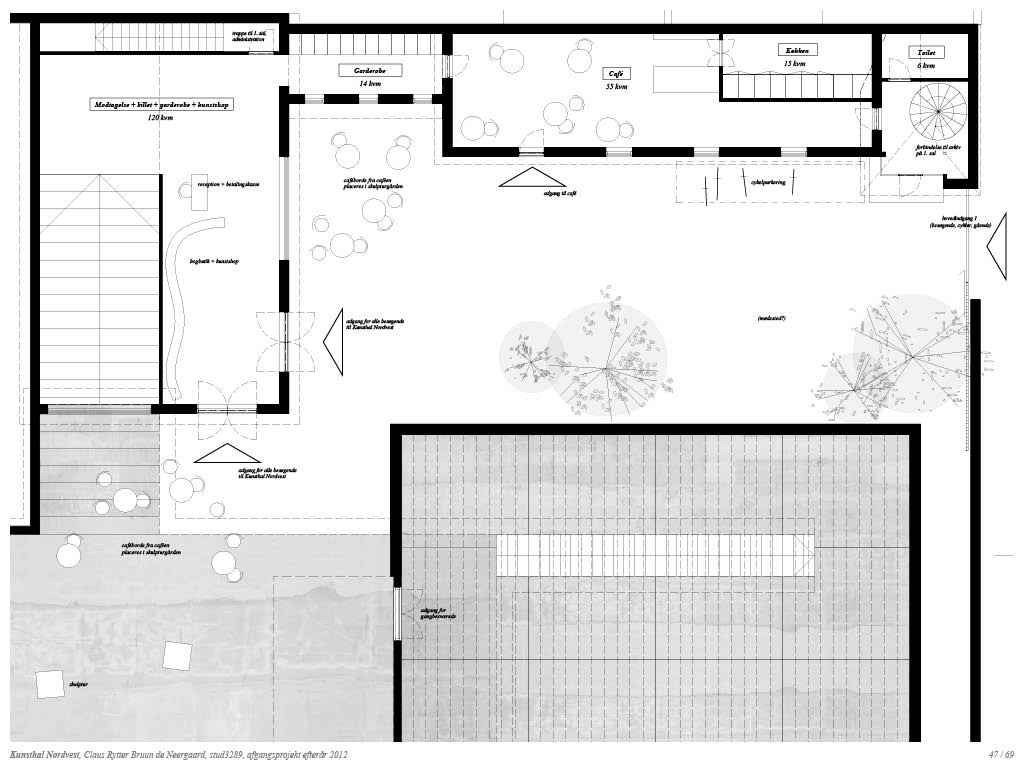
Rumprogram
Rumprogrammet - ud over café, lounge, butik, reception/modtagelse, administration, kurators kontor, personalefaciliteter, toiletfaciliteter, teknikrum og et mindre depot – består overordnet af tre udstillingsrum: “Den Blå Box”, “Den Grå Box” og “Dem Hvide Box". Det er tanken, at de tre rum skal være differentieret primært gennem deres brug af dagslyset og stillingtagen til den umiddelbare kontekst. De tre rum repræsenterer tre ‘tilstande’.
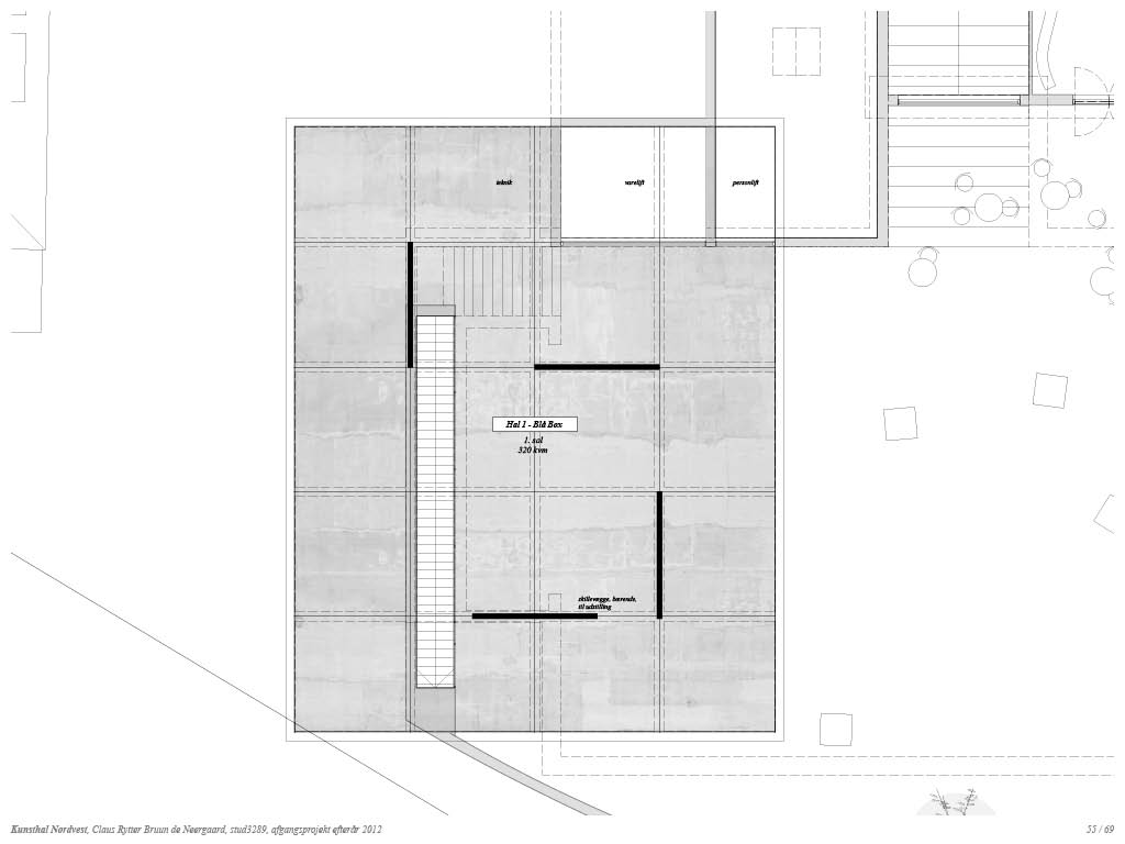
Den Blå Boks
Et rum med stærk fokus på iscenesættelsen og kontakten til byen omkring kunsthallen. Dagslys vægter ligeledes højt, og skal have en afgørende og definerende rolle i rummets udformning og efterfølgende brug. Et rum der fordrer relationel kunst, stedsspecifik kunst; et rum hvor de udstillende kunstnere bliver nødt til at forholde sig til de umiddelbare omgivelser, dagslysforhold og materialevalg.

Den Grå Boks
Et lukket og ‘mørkt’ rum, der indrettes således at, der kan huses både forehlæsninger, filmfremvisninger eller andre former for projekteringer uden en egentlig dagslysproblematik. Kunstlyset skal kunne styres fuldstændigt, og ændres efter behov. Der skal være mulighed for at etablere tilskuerpladser via udtrækkelig tribuner eller ramper. Det skal være muligt at reetablere rummets umiddelbare gulvplads, efter behov.

Den Hvide Boks
Det hvide, utopiske og løsrevede rum, som, ved sin fuldstændigt jævne belysning uanset tidspunkt på døgnet, og isolering fra omkringliggende aktiviteter og indtryk, forsøger at skabe et slags ‘tilstand’ hvor verden udenfor glemmes et øjeblik. Her kan kunstnere behandel rummet efter ønske, og gulv, vægge og loftkonstruktioner vil træde i ‘baggrunden’ som et blankt lærrede. Særlige vægkonstruktioner og kunstlysforhold gælder. Rummet skal fremstå ‘råt’ og fleksibelt i sin overfladekarakter.












